Deep Energy Retrofit 2014

Our clients wanted a larger kitchen and a master bath with a walk in shower upstairs. So a modest addition in the front and the back of the house, all new “Accurate Dorwin”[...]

The Finished House

We are happy that these wonderful clients were able to move in to their new home before the holidays in December 2013. This efficient house is heated with a Fujitsu Mini Split[...]

February 2014 Preview Magazine

We are featured in this months Preview Magazine. Check it out! Once you open the Feb 2014 issue it’s on pages 20- 23. Or you can just scroll down and see it[...]

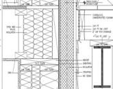
A Complete Robust House Air Seal

Using “ProClima Tescon Vana” tape which is highly adhesive and “Siga Majvest” microporous membrane for rainproof and wind tight building envelope. “ProClima Tescon Vana” Used to form a secure and permanent seal[...]

Foundation Completely Air Sealed

This shot of the foundation shows the complete air barrier formed by 6″ of eps foam insulation and then “Stego” wrap over the concrete. Taped with SIGA “Wigluv” totally sealing the radon[...]

Building Science Symposium

Kent just returned from the invitation only Building Science Corporation 17th  Symposium. The event is hosted by the foremost authority on Building Technology and principal of Building Science Corp, Joseph Lstiburek. Joe[...]

Garrison Institute “Climate, Buildings and Behavior”

Kent has been invited to attend this year’s symposium. From September 18th to September 20th, the Garrison Institute will host its fifth annual Climate, Buildings and Behavior (CBB) Symposium. This high-level meeting[...]

Our first duct blaster (blower door) reading at Country PH

Our initial duct blaster test for monitoring the air tightness of the building envelope was very good. The closed shell read at 0.18 ACH (air changes an hour) @ 50 Pascals (of[...]

Data Loggers

We are installing data loggers into the walls of the passive homes we are currently building. Originally designed to monitor building moisture and temperature problems as a precaution for future problems.  Micro-electronic[...]

Wick DER Meets Thousand Home Challenge

The Wick Deep Energy Retrofit is the 16th home to meet the Thousand Home Challenge. They achieved more than a 75% site energy reduction from their Nov 09-Nov 10 baseline of 39,348[...]

Radon Abatement

Radon is a colorless, odorless, radioactive gas.  According to the EPA:  Radon comes from the natural (radioactive) breakdown of uranium in soil, rock and water and gets into the air you breathe.[...]

Foamglas

All materials at the Savoy house are being tested for toxicity.  Commonly used rigid foam boards such as extruded polystyrene (XPS) and expanded polystyrene (EPS) are made with flame-retardants; XPS owes its light weight to[...]

West Cummington Church Reopens

On December 2, 2012, the bell rang to call the congregants of the West Cummington Congregational Church (WCCC) up the hill to a new spiritual home.  Their beloved old church, erected in 1839,[...]

Passivhaus Design: Breezeway

The Williamsburg Passivhaus (PH) is two PH buildings linked by a breezeway.  The home will include a wood stove in the breezeway between the two structures, making it a three season space.  PH design[...]

Wick DER

Wick DER Green Mechanical Contractor Magazine, cover story, Dec 2012 http://www.buildingscience.com/documents/case-studies/cs-ma-northampton-ngrid-deep-energy-retrofit-comprehensive-1859-victorian      

Kent presents at the ACI National Home Performance Conference

Affordable Comfort, Inc. is the leading educational resource for the home performance industry. Kent along with Paul Eldrenkamp of the deap energy group spoke on aggressive air tightness goals at last years[...]